м2
соток

Дом 311м², участок 5,9 сот.

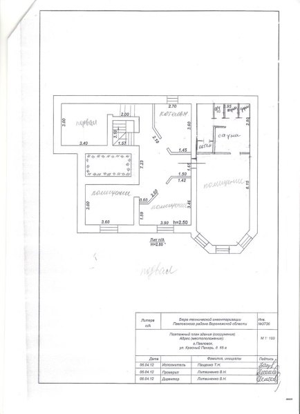
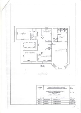
Павловск, ул Красный Пахарь, д. 65а
Продается Коттедж с гаражом в черте города Павловск расположен в живописной излучине Дона, прямо на берегу реки. Из окон открывается вид на реку и долину ( см. фото).
Высота потолков - 3.15 м и 2.5 м цокольный этаж..
В доме два санузла на первом и втором этаже.
В доме имеется отдельно цокольный этаж с помещением под сауну, бытовые помещения для стирки белья и др. назначения. Из помещения цокольного этажа имеется вход в погреб.
Дом оштукатурен, газ на границе участка, вода и электричество в доме.
Прямо перед домом имеется спуск к реке.
Стены коттеджа из пеноблока облицованы огнеупорным кирпичом; стены цокольного этажа железобетонные блоки; перекрытие цокольного и первого этажа железобетонные плиты перекрытия; перекрытие второго этажа дерево, утеплитель рулонный; крыша металлическая черепица;
Окна терм(тройной) стеклопакет с напылением, москитные сетки;
Гаражные ворота секционные .
Коттедж возможно использовать в предпринимательской деятельности - для сдачи в аренду для отдыха на берегу реки Дон круглогодично, так как имеется сауна с помещением для отдыха, возможно использование для проведения праздников.
Продает собственник - юридическое лицо. Торг для потенциального покупателя уместен.
Возможна Ипотека.
Тип предложения Продам
География Павловск, Воронежская область, Павловский район
Адрес
ул Красный Пахарь, д. 65а
Вид участка
Земли поселений (ИЖС, ЛПХ)
Площадь дома
311,00 м2
Площадь участка
5,90 соток
Дополнительно
возможность ПМЖ
Условия сделки
ипотека

Все ваши сообщения мы читаем и все пожелания учитываем, но, к сожалению, ответ не гарантируем.

Если вы расчитываете получить ответ, не забудьте заполнить это поле.
Отправить

Сообщение будет отправлено на электронную почту автора объявления. Ваш электронный адрес будет ему доступен для ответа.

Отправить
Отправить